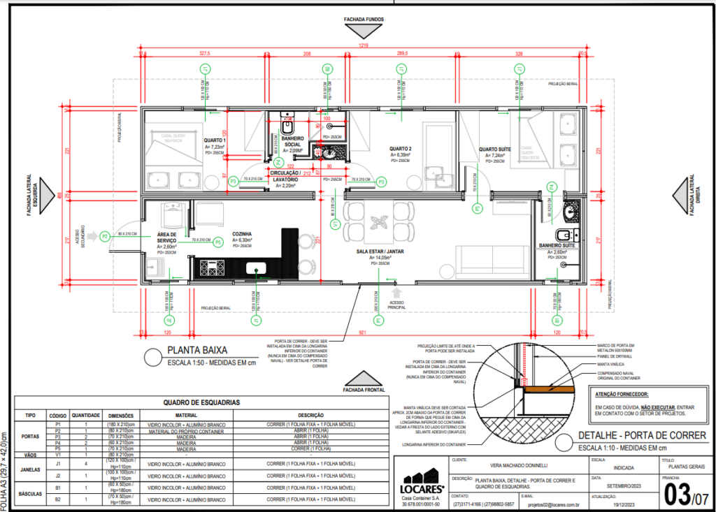
Este projeto impressionante utiliza dois containers marítimos de 40 pés, cada um com as dimensões de 12 metros de comprimento x 2,44 metros de largura x 2,57 metros de altura, resultando em uma área total de aproximadamente 60m². A Locares Casa Container entregou essa solução prática e sustentável em um curto período de tempo, ideal para quem busca modernidade, conforto e responsabilidade ambiental.
















Casa Container de 40 Pés - Projeto Verde com Dois Containers
Assista o vídeo
Ambientes Amplos e Funcionais
Com o uso de dois containers, a casa container oferece um espaço interno ainda mais otimizado e funcional:
- Sala de Estar / Jantar: Um ambiente integrado de 14,05m², perfeito para momentos de lazer e convivência.
- Cozinha: Funcional, com 6,30m², que permite praticidade e integração com os outros ambientes.
- Área de Serviço: Compacta e eficiente, com 2,60m², projetada para atender às necessidades diárias.
- Quarto Suíte: Amplo e confortável, com 7,24m², incluindo um banheiro suíte de 2,60m².
- Quarto 2: Um quarto adicional de 6,39m², ideal para hóspedes, um escritório ou quarto infantil.
- Banheiro Social: Com 2,09m², oferece praticidade e funcionalidade para o dia a dia.
Acabamento de Alta Qualidade
- Isolamento Termoacústico: Proporciona um excelente controle de temperatura e conforto acústico, tornando o ambiente mais agradável.
- Piso: Manta vinílica nas áreas secas e revestimento cerâmico nas áreas molhadas, garantindo durabilidade e facilidade de manutenção.
- Portas e Janelas: Em alumínio com vidros incolores, maximizando a entrada de luz natural e ventilação.
Cobertura e Estrutura
O projeto inclui uma telha metálica, que protege contra as intempéries e assegura uma estrutura robusta e moderna. Além disso, o uso de dois containers permite uma maior flexibilidade no design e no aproveitamento dos espaços internos.
Solicite Seu Orçamento!
Interessado neste projeto de casa container com dois containers de 40 pés? Entre em contato com a Locares Casa Container e saiba como podemos personalizar sua casa container de acordo com suas necessidades. Solicite um orçamento agora mesmo com nosso time comercial:
📞 Ligue para: (27) 3171-4150 ou 3003-0679 (Capitais e Regiões Metropolitanas)
📧 Envie um e-mail para: comercial02@locares.com.br
📅 Horário de atendimento:
Seg – Qui: 7:30 – 17:30 | Sex: 7:30 – 16:30
Imagens da Casa Container - Projeto Verde
Confira abaixo algumas imagens que ilustram os espaços internos da casa container:














