Descubra a modernidade e a eficiência de nossa casa container de 60m², composta por dois containers marítimos de 40 pés, totalizando 12 metros de comprimento x 4,88 metros de largura x 2,89 metros de altura. Esta solução é ideal para quem busca inovação, sustentabilidade e conforto. A Locares Casa Container entregou este projeto em apenas 60 dias, reafirmando nosso compromisso com prazos ágeis e qualidade de construção.


















Casa Container de 60m² com 2 Containers Marítimos
Assista o vídeo
Ambientes Confortáveis e Funcionais
Nossa casa container é composta por:
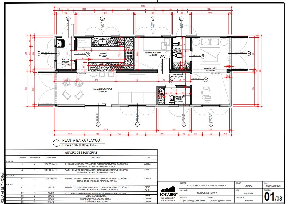
- Sala de Estar / Jantar Conjugada com Cozinha: Espaço amplo e integrado de 15,47m², perfeito para momentos em família.
- Área de Serviço: Funcional e compacta, com 2,77m².
- Quarto Solteiro: Confortável e acolhedor, com 5,56m².
- Quarto Suíte: Suíte principal com 12,08m², proporcionando privacidade e conforto.
- Banheiro Suíte: Com 2,60m², acabamento moderno e funcional.
- Banheiro Social: Prático, com 2,57m².
- Circulação: Área de circulação otimizada de 2,13m².
Acabamento de Qualidade
- Isolamento Termoacústico: Lã de PET nas paredes e teto, assegurando conforto térmico e acústico.
- Revestimento Interno: Paredes e teto em drywall.
- Pisos:
- Áreas secas com manta vinílica, garantindo durabilidade e conforto.
- Banheiros e área de serviço com piso cerâmico de alta resistência.
- Revestimento de Paredes: Banheiros e área de serviço revestidos com cerâmica.
Bancadas: Cozinha e banheiros equipados com bancadas em granito Branco Siena, valorizando o ambiente.
Cobertura Resistente
A casa container conta com uma cobertura de telha metálica, ideal para resistir às mais variadas condições climáticas.
Solicite Seu Orçamento!
Gostou deste projeto? Entre em contato com nosso time comercial para solicitar um orçamento e saber mais sobre como podemos transformar seu sonho em realidade! Estamos prontos para atendê-lo com agilidade e eficiência.
📞 Ligue para: (27) 3171-4150 ou 3003-0679 (Capitais e Regiões Metropolitanas)
📧 Envie um e-mail para: comercial02@locares.com.br
📅 Horário de atendimento:
Seg – Qui: 7:30 – 17:30 | Sex: 7:30 – 16:30
Imagens da Casa Container
Confira abaixo algumas imagens que ilustram os espaços internos da casa container:


















